- Détails
Chambres d'hôtes et gîtes à vendre à Arpajon sur Cère dans le Cantal
Chambres d'hôtes et gîtes à vendre Cantal - Auvergne
Au cœur du Cantal en périphérie d'Aurillac (15130 Arpajon sur Cère)
Voisin des vaches et à 15 minutes du centre ville.
A vendre 330000 euros
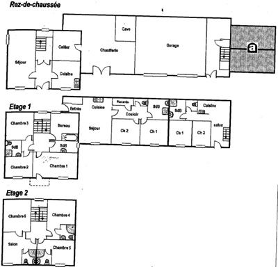
Ensemble immobilier composé d'une maison de trois niveaux et d'une ancienne grangette accolée de deux niveaux.
La grangette a été transformées en deux appartements (gîtes) au niveau 1 et 'dépendances' au niveau 0.
Le tout posé sur un terrain d'environ 2500m2 avec arbres centenaires, potager et pelouse.
La maison a été rénovée et modernisée en 2018 : cinq salles d'eau entièrement neuves, cuisine aménagée, tous les murs sauf la cage d'escalier, sol du rdc.
Le tout en très bon état car j'ai fait seulement deux petites "saisons de démarrage". (Après j'ai du arrêter pour raisons de santé.)
Maison construite sur vide sanitaire vers 1930.
Environ 55m2 BRUT de surface intérieur par niveau, pour un total d'environ 165m2 BRUT.
Le 3eme niveau est mansardé : échappée 1,80m à 0,7m du mur.
Les pièces ont été réparties de manière efficace et cohérente, il n'y a presque pas de m2 inutile.
Avec les meubles actuels on peut dormir à 15 dans cette maison.
J'exploitais quatre chambres en chambres d'hôtes, dont deux doubles :
Niveau 1 : Chambre familiale jumelles
Niveau 2 : deux chambres et une chambre familiale double
Salle d'eau privative pour chaque chambre.
La maison est exploitable en Chambres d'Hôtes tel quel sans travaux.
Les gîtes sont en coursde rénovation, travaux arrêtés.
Les murs ont été rénovés par un professionnel.
Travaux à prévoir pour pouvoir utiliser les gîtes : cuisine, salle d'eau et une partie des sol, Velux (?)
Travaux à prévoir pour la maison non indispensable pour habiter et exploiter en c-h : Fenêtres, porte-fenêtre et Velux
Description :
- Maison niveau 1, 3 pièces
Grand séjour en L avec poêle à bois moderne (Contrairement au plan il n'y a plus la cloison qui formait un couloir.)
Cuisine aménagée en 2018 avec verrière de style industriel
Cellier avec WC "d'époque" fonctionnelle - Maison niveau 2, 4 pièces et 2 salles d'eau Bureau (lingerie/rangement)
Grande chambre parentale avec salle d'eau
Deux chambres indépendantes 'jumelles' qui se partagent une salle d'eau - Maison niveau 3, 4 pièces et 3 salles d'eau
Chambre avec salle d'eau
Chambre avec salle d'eau
Chambre double (2 pièces) avec salle d'eau - Grangette transformée niveau 0 :
Buanderie, local chauffage et cave, environ 39m2 (sans compter le recoin chaufferie)
Garage double avec portes sectionnelles électriques, environ 49m2
Hall d'entrée 'multifonction' de l'appartement coté cour, de 10m2 - Grangette transformée niveau 1
Deux appartements, entrées indépendantes, à terminer de rénover. (63m2 + hall d'entrée et 70m2 pour l'autre.) - Dans chaque appartement : séjour avec coté cuisine, deux chambres, salle d'eau, WC séparé, placard dans les murs.
- Et encore :
Anciennes loges à cochon (indiqué 'a' sur le plan) utilisés pour stockage bois, outils de jardins et autres
Un poulailler grillagé accolé aux loges à cochons - Informations techniques :
Chauffage au fuel pour l'ensemble
Assainissement individuel non conforme
Je répondrai à toutes vos questions (si possible) et l'on peut essayer une visite en 'visio' pour vous éviter le premier déplacement. (Jamais fait, je ne sais pas si cela est efficace.)
Merci pour votre intérêt
Fabrice Cette adresse e-mail est protégée contre les robots spammeurs. Vous devez activer le JavaScript pour la visualiser. Tel : 06 36 67 65 49
DPE Maison : D - Appartements : F
Prix de vente du bien 330 000€














